Completed
Plans
Masterplans
About
Blog
Completed
Plans
Masterplans
About
Blog
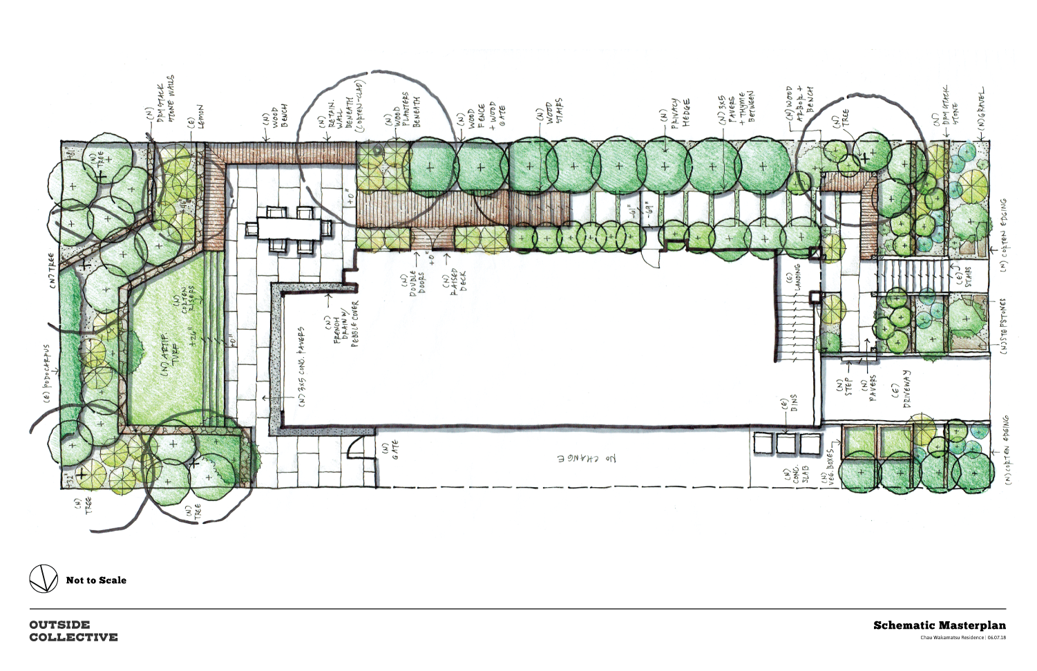
Modern Rustic Masterplan
Albany, CA
↑
Back to Top