Completed
Plans
Masterplans
About
Blog
Completed
Plans
Masterplans
About
Blog
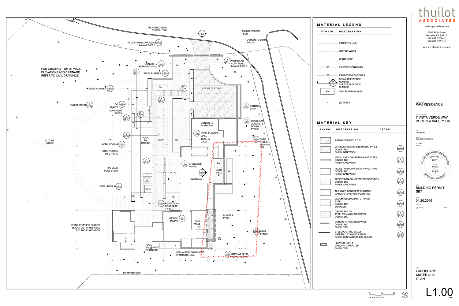
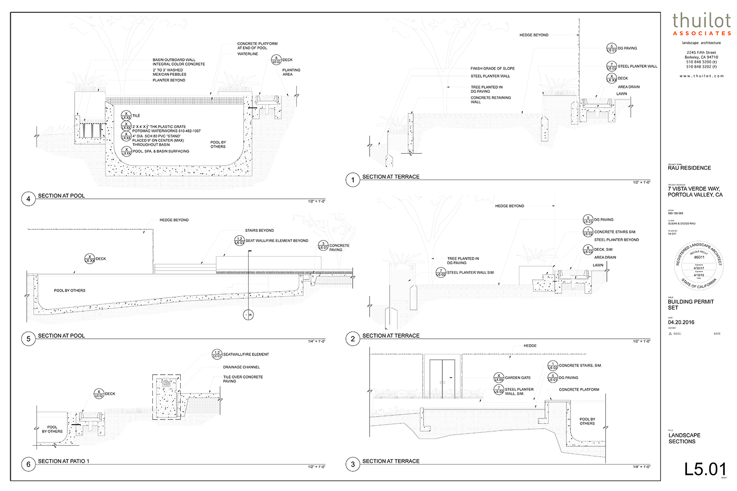
Construction Documents for a Modern Residential Garden
Landscape Design
Construction drawing progress set created by Nicole Kelly at Thuilot Associates, with production help from Christel Leung.
↑
Back to Top