Completed
Plans
Masterplans
About
Blog
Completed
Plans
Masterplans
About
Blog
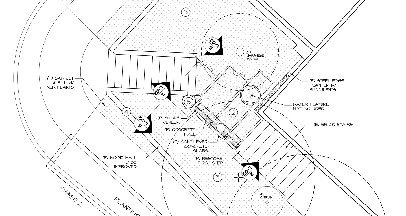
MODERN ENTRY DESIGN
Landscape Design
Designed in collaboration with Planted Earth Design Build Company.
↑
Back to Top